Page Property Services


Price £200,000 New Instruction
  • Ground Floor
  • Allocated Parking
  • Two Double Bedrooms
  • Two Bathrooms
  • Close to City Centre & Train Stations

Page & Co are delighted to present this well-maintained ground floor apartment, ideally situated in the ever-popular Bingley Court development.

This sought-after location offers excellent convenience, just a short walk from Canterbury's vibrant City Centre, both Canterbury East and West train stations, and with easy access to the A2 making it ideal for commuters and city lovers alike.

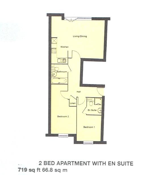
The apartment comprises two generously sized double bedrooms and two bathrooms, including an en-suite shower room to the master bedroom. The spacious open-plan living, dining, and kitchen area offers a flexible layout and benefits from plenty of natural light. French doors at the rear of the property open out to a small private outdoor space, perfect for a morning coffee or some fresh air.


The kitchen comes fully fitted with a washing machine, oven, and hob, with ample storage and preparation space.

Please note: The property would benefit from some modernising giving any buyer the opportunity to personalise the space to their own taste.



Additional benefits include:

An allocated parking space (with permit)

Secure entry system,

Short walk to a large supermarket for day-to-day essentials and the

City centre within easy walking distance, offering access to shops, restaurants, and historic attractions






Council Tax
Canterbury City Council, Band D

Ground Rent
£213.00 Yearly

Service Charge
£1,968.00 Yearly

Lease Length
109 Years

Notice
Please note we have not tested any apparatus, fixtures, fittings, or services. Interested parties must undertake their own investigation into the working order of these items. All measurements are approximate and photographs provided for guidance only.

Floor Plan
EER Chart

The Energy-Efficiency Rating is a measure of a home's overall efficiency. The higher the rating, the more energy-efficient the home is, and the lower the fuel bills are likely to be.

Utility Supply Type
Electric Mains Supply
Gas None
Water Mains Supply
Sewerage None
Broadband None
Telephone None

Other Items Description
Heating Electric Heaters
Garden/Outside Space No
Parking Yes
Garage No

Broadband Coverage Highest Available Download Speed Highest Available Upload Speed
Standard 16 Mbps 1 Mbps
Superfast 80 Mbps 20 Mbps
Ultrafast Not Available Not Available

Mobile Coverage Indoor Voice Indoor Data Outdoor Voice Outdoor Data
EE Likely Likely Enhanced Enhanced
Three Likely Likely Enhanced Enhanced
O2 Enhanced Likely Enhanced Enhanced
Vodafone Likely Likely Enhanced Enhanced

Broadband and Mobile coverage information supplied by Ofcom.


marker icon